Mieszkanie na wynajem

Katowice, os. Paderewskiego, Francuska

2 pokoje
51.00 m²
58,82 zł/m2
1 piętro
ABI-MW-5329

3 000 zł

Nowa oferta
Video

Szczegóły oferty

Symbol oferty ABI-MW-5329
Powierzchnia 51,00 m²
Liczba pokoi 2
Liczba sypialni 1
Rodzaj budynku apartamentowiec
Kaucja zabezp. 3000
Standard
Opłaty w czynszu administracja, fundusz remontowy, ochrona
Opłaty wg liczników CO, prąd, woda
Piętro 1
Liczba pięter w budynku 8
Garaż miejsce parkingowe
Stan lokalu Po remoncie
Typ kaucji jednomiesięczna
Mies. czynsz admin. 210 PLN
Okna nowe PCV
Instalacje nowe
Balkon duży
Liczba balkonów 1
Rok budowy 2019
Parking strzeżony (odległość w metrach) 1 m
Plac zabaw tak
Gaz brak
Woda ciepła - miejska
Dojazd asfalt
Otoczenie park
Ogrzewanie miejskie
Umeblowanie umeblowane i wyposażone
Odległość do komunikacji publicznej [m] 50 m
Odl. do sklepu [m] 50 m
Winda tak
Tarasy taras
Usytuowanie narożne
Drzwi antywłamaniowe tak
Michał Bartkowiak

Michał Bartkowiak

Agent Nieruchomości

Napisz wiadomość 11 Ofert

Opis nieruchomości

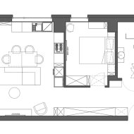
Prezentujemy Państwu prześliczne mieszkanie z dużym balkonem na osiedlu Atal - Francuska Park przy ul. Francuskiej 108a. 
Mieszkanie usytuowana na pierwszym piętrze wraz ze skrytką lokatorską i miejscem parkingowym w garażu podziemnym W CENIE NAJMU!

Wyposażenie ukryte w zabudowie: zmywarka, pralka, lodówka.

Koszty administracyjne i media płatne osobno. Licznik elektryczny przepisywany na Najemcę.

Brak dodatkowej opłaty za miejsce parkingowe i skrytkę lokatorską.

Centralne ogrzewanie oraz ciepła woda z sieci miejskiej.

Mieszkanie dostępne od zaraz.

Salon wyjątkowo przestronny. 

Przez sypialnie nie trzeba się przeciskać

Balkon z widokiem na Muchowiec. 

Media i inne koszty:
- Centralne ogrzewanie - opłata zmienna - 144 PLN
- Centralne ogrzewanie i ciepła woda - opłata stała - 169 PLN
- Śmieci - 35,20 PLN
- Utrzymanie powierzchni wspólnych - 216 PLN
- Fundusz remontowy - 25,25 PLN
- Opłata za miejsce garażowe - 54,29 PLN
- Woda wg zużycia
- Prąd przepisywany na najemcę

 

Materiał wideo

Lokalizacja nieruchomości

Agent Nieruchomości

Proszę wprowadzić poprawne imię i nazwisko
Proszę wprowadzić poprawny numer telefonu
Proszę wprowadzić poprawny adres e-mail
Proszę zaznaczyć wymagane zgody
Rozwiąż równanie:
21 6
Niepoprawny wynik